0
Retour

Millery (69390)
EXCLUSIVITÉ – Demeure de caractère de 8 pièces du XVII siècle à Millery 322m², Grande Rue, 69390 Millery

Prix
du bien
790 000 €
Le bien
en vidéo
réf : 226

01
Général

L’agence Flat Fish Immo vous propose en exclusivité cette demeure rare du XVIIème siècle, entièrement rénovée, alliant avec élégance le charme de l’ancien et le confort moderne.

Ce bien est à vendre en vente interactive sur le site de SQUARIMO. Le prix affiché est un prix de présentation sur lequel vous faites une proposition à la hausse.

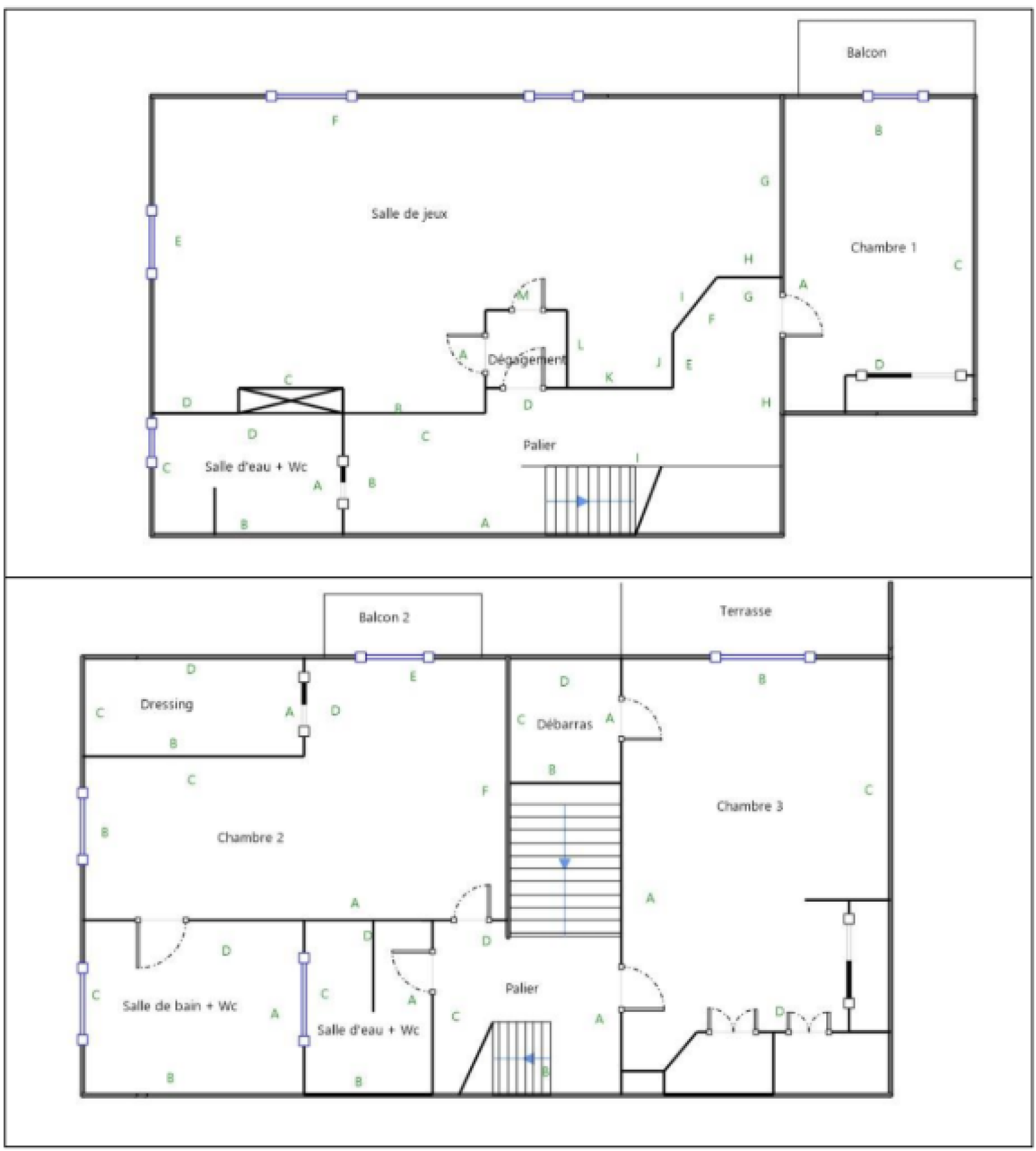
Située Grande Rue, au cœur du village de Millery (Rhône), cette maison de caractère d'environ 267 m² habitables, répartis sur trois niveaux et complétés par une tour panoramique, séduit par ses volumes généreux, son cachet architectural et ses nombreuses possibilités d’aménagement, aussi bien pour une résidence principale de standing que pour un projet d’investissement.

Les éléments d’époque ont été soigneusement conservés : pierres apparentes, poutres et plafonds à la française, escalier en pierres, bois massif et cave voûtée. Les espaces de vie sont lumineux et s’organisent autour d’une cuisine équipée. Les chambres, dont plusieurs suites, offrent de beaux volumes et des dressings. Le confort est assuré par un chauffage au sol, complété par des radiateurs en fonte et électriques. La toiture a été révisée et les menuiseries bois sont en double vitrage.

À l’extérieur, la propriété s’étend sur un terrain d'environ 408 m², comprenant environ 230 m² d’espaces extérieurs aménagés, organisés autour d’une agréable cour intérieure intimiste, constituant un véritable espace de vie extérieur.

Elle dispose également d’une terrasse de 24,15 m², ainsi que de deux balcons totalisant 4,78 m² (2,63 m² et 2,15 m²), apportant luminosité et vues dégagées.

Un garage fermé de 30 m², une cave et quatre places de stationnement privatives situées sur la propriété complètent ce bien, un atout particulièrement rare en plein cœur du village.


Un bien aux multiples projets

Famille : grande maison chaleureuse, proche des écoles et commodités.

Profession libérale : possibilité d’un espace indépendant avec stationnement sur place.

Investisseur : volumes et configuration permettant la création de plusieurs logements (location meublée, colocation haut de gamme, gîtes de charme).


Localisation & informations

Centre de Millery, village dynamique avec commerces, écoles et transports
À 20 minutes de Lyon, accès rapide aux axes autoroutiers

Taxe foncière : 1 140 €
DPE : C
Adresse : Grande Rue, 69390 Millery

Ce bien est à vendre en vente interactive sur le site de SQUARIMO. Le prix affiché est un prix de présentation sur lequel le vendeur n’est pas engagé à vendre. La participation à la vente interactive de SQUARIMO n’entraîne aucun frais supplémentaire pour l'acquéreur, ni pour le vendeur. La participation à la vente interactive est soumise à agrément préalable de SQUARIMO. Les offres seront transmises au vendeur, qui reste libre de choisir parmi les offres formulées. Une offre formulée sur le site SQUARIMO n’est pas un engagement d’acquérir, mais une intention de négocier de bonne foi sur la base des conditions de l’offre.

Contactez-nous pour organiser une visite.

02
Plus d'infos

  • Code postal
    69390
  • Surface habitable (m²)
    322 m²
  • surface terrain
    408 m²
  • Surface loi Carrez (m²)
    266,73 m²
  • Nombre de chambre(s)
    5
  • Nombre de pièces
    8
  • Nombre de niveaux
    3
  • Vue
    Dégagé, Montagne

03
Financier

  • Prix de vente honoraires TTC inclus
    790 000 €

04
Plus de détails

  • Nb de salle de bains
    1
  • Nb de salle d'eau
    3
  • Cuisine
    Américaine
  • Type de cuisine
    Equipée
  • Mode de chauffage
    Gaz, Gaz, Electrique
  • Type de chauffage
    Au sol, Radiateur, Radiateur
  • Format de chauffage
    Individuel, Individuel, Individuel
  • Balcon
    OUI
  • Terrasse
    OUI
  • Murs mitoyens
    1
  • Nombre de garage
    1
  • Nombre de parking
    4
  • Année de construction
    1900

05
Copropriété

  • Copropriété
    NON

06
Bilan énergétique

DPE GES
Nos outils

Plus d'informations sur
le quartier

  • Commerces et santé
  • Loisirs
  • Ecoles
  • Transports
  • Pratique
Intéressé(e)
par ce bien