0
Retour

Vénissieux (69200)
Appartement T3/T4 – 69 m² - 2 Rue du Clos Verger, 69200 Vénissieux

Prix
du bien
189 000 €
Le bien
en vidéo
réf : N00225

01
Général

À VENDRE – Appartement T3/T4 – 69,12 m²

2 Rue du Clos Verger, 69200 Vénissieux – Copropriété “Stade de Parilly”
Idéal famille ou investissement locatif

Situé au sein de la copropriété Stade de Parilly, dans un environnement calme et verdoyant, à proximité immédiate du Parc de Parilly, des transports et des commodités, cet appartement offre un cadre de vie agréable et un fort potentiel.

D’une superficie Loi Carrez de 69,12 m² pour une surface au sol de 71,30 m², le bien est situé au 3eme étage sans ascenseur sur 4 étages, d’une copropriété bien entretenue.

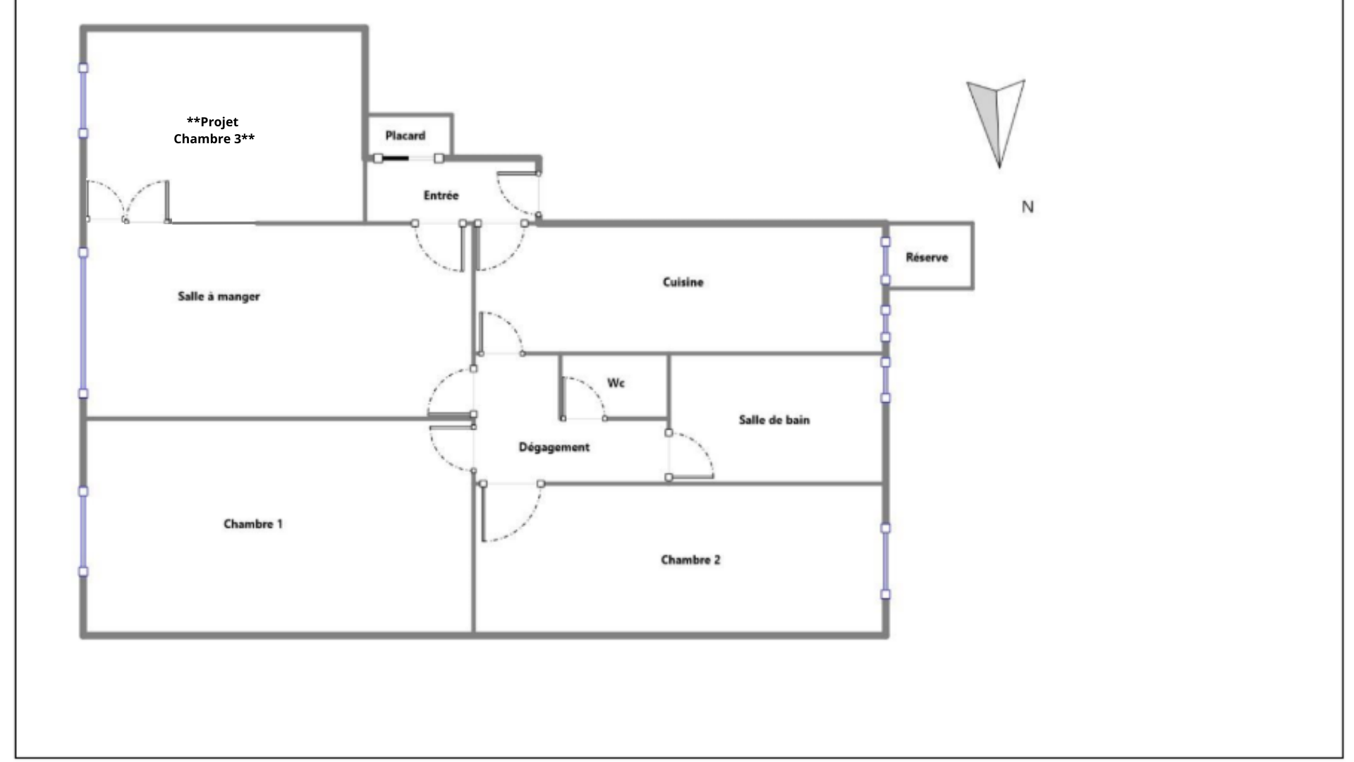
L’appartement se compose d’une entrée avec placard, d’un séjour / salle à manger spacieux et lumineux offrant une vue dégagée sur les espaces verts, ainsi que d’une cuisine indépendante équipée donnant accès à une loggia fermée, idéale comme espace complémentaire.

La partie nuit comprend deux chambres, avec la possibilité d’en créer une troisième, aux surfaces équilibrées, offrant une organisation confortable aussi bien pour une vie de famille que pour un projet d’investissement locatif, notamment en colocation.
Une salle de bain moderne avec baignoire ainsi que des WC séparés complètent l’agencement.

Le bien a bénéficié d’une rénovation récente (sols, peintures, cuisine, salle de bain) et dispose d’un chauffage collectif au gaz par le sol, assurant un confort thermique homogène.
Une cave complète l’appartement et offre un espace de stockage supplémentaire.

Les atouts du bien :

  • Superficie Carrez : 69,12 m²

  • Surface au sol : 71,30 m²

  • 2 chambres + possibilité 3eme chambre

  • Loggia fermée côté cuisine

  • Salle de bain avec baignoire

  • WC séparés

  • Chauffage collectif au gaz par le sol

  • Cave incluse

  • Copropriété Stade de Parilly99 lots principaux

  • Présence d’un gardien dans la copropriété

Informations financières :

  • Charges de copropriété : environ 180 € / mois, incluant notamment la présence d’un gardien

  • Taxe foncière : 1 029 € / an

Localisation & transports :

  • Parc de Parilly à proximité

  • Métro D – Parilly

  • Bus 39

  • Université Lumière Lyon 2 à proximité

  • Accès rapide à Lyon et aux grands axes

Informations complémentaires :

Les diagnostics ont été réalisés le 07/01/2026.
Les honoraires sont à la charge du vendeur.
Les informations sur les risques auxquels ce bien est exposé sont disponibles sur www.georisques.gouv.fr.

Les informations sur les risques auxquels ce bien est exposé sont disponibles sur le site Géorisques : www.georisques.gouv.fr

Contacter l'agence FLAT FISH IMMO pour tous renseignements et visite avec cecile . gonin @ or an ge .fr - Tél : O6 48 8O 43 53 - w w w .flat - fish . fr


Les informations sur les risques auxquels ce bien est exposé sont disponibles sur le site Géorisques

02
Plus d'infos

  • Code postal
    69200
  • Surface habitable (m²)
    69,12 m²
  • Surface loi Carrez (m²)
    69,12 m²
  • Nombre de chambre(s)
    2
  • Nombre de pièces
    3
  • Etage
    3
  • Nombre de niveaux
    1
  • Ascenseur
    NON
  • Vue
    Parc

03
Financier

  • Prix de vente
    189 000 €
  • Les honoraires d'agence seront intégralement à la charge du vendeur
     
  • Charges
    186 €
  • Taxe foncière annuelle
    1 029 €

04
Plus de détails

  • Nb de salle de bains
    1
  • Cuisine
    Séparée
  • Type de cuisine
    SEMI-EQUIPEE
  • Mode de chauffage
    Gaz
  • Type de chauffage
    TRAD_TYPE_CHAUFF_CHAUDIERE
  • Format de chauffage
    Collectif
  • Interphone
    OUI
  • Visiophone
    NON
  • Balcon
    OUI
  • Terrasse
    NON
  • Murs mitoyens
    1
  • Cave
    OUI
  • Année de construction
    1965

05
Copropriété

  • Copropriété
    OUI
  • Lot n°
    187, 167
  • nombre de lots
    289
  • Quote Part annuelle des charges
    2 232 €
  • plan de sauvegarde
    NON
  • statut du syndic
    pas de procédure en cours

06
Bilan énergétique

DPE GES
Nos outils

Plus d'informations sur
le quartier

  • Commerces et santé
  • Loisirs
  • Ecoles
  • Transports
  • Pratique
Intéressé(e)
par ce bien