0
Retour

Chaponost (69630)
Maison familiale rénovée 230 m² – 4 chambres – Suite au RDC – Centre Chaponost

Prix
du bien
990 000 €
réf : 230

01
Général

Située en plein cœur de Chaponost, à proximité immédiate des écoles, des commerces et des transports, cette maison de caractère d’environ 230 m², édifiée sur une parcelle de 650 m², a fait l’objet d’une rénovation haut de gamme avec extension contemporaine en 2020.

Dès l’entrée, le ton est donné : les matériaux nobles tels que le béton ciré, les plafonds en chêne massif ou encore la peinture à l’argile s’harmonisent parfaitement, offrant un subtil équilibre entre authenticité et modernité.

La pièce de vie, d’environ 110 m², propose de beaux volumes avec plusieurs espaces ouverts. La cuisine s’ouvre sur un salon hors norme, baigné de lumière grâce à de larges ouvertures permettant un ensoleillement optimal tout au long de la journée. L’ensemble s’articule autour d’une élégante cheminée à double insert, véritable pièce maîtresse de la maison. Une spacieuse suite parentale avec dressing et salle de bains privative complète ce niveau.

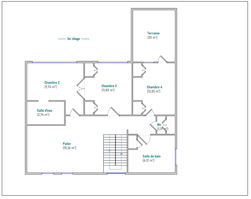
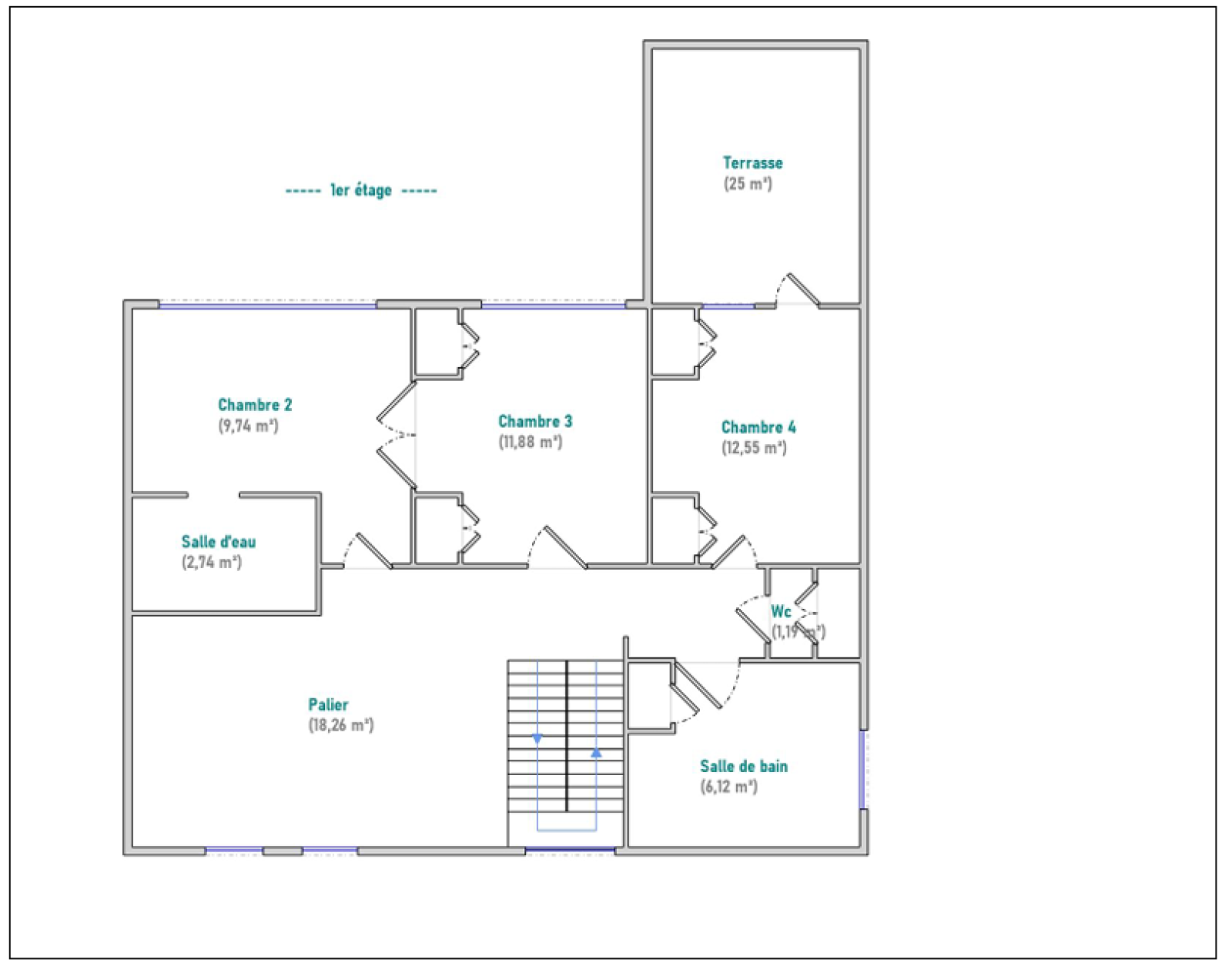
À l’étage, accessible par un escalier aérien mêlant bois et métal, vous découvrirez deux chambres se partageant une salle de bains. L’une d’elles bénéficie d’un accès à une grande terrasse en bois, offrant une vue dégagée sur la végétation environnante. Une seconde suite avec salle d’eau privative permet d’accueillir famille ou invités en toute indépendance. Un espace ouvert laisse également la possibilité d’aménager un home cinéma ou une cinquième chambre.

Alliant parfaitement le charme de l’ancien et le confort contemporain, cette maison séduit par ses volumes, sa luminosité et ses prestations de qualité. Elle bénéficie notamment d’un système de climatisation apportant un confort appréciable en toute saison, ainsi que d’un espace détente extérieur avec piscine/spa de nage de 4,25 m x 2,15 m, équipée d’un système de nage à contre-courant et balnéothérapie.

Garage chauffé
Hypercentre de Chaponost

CLASSE ÉNERGIE : C / CLASSE CLIMAT : A
Montant estimé des dépenses annuelles d’énergie pour un usage standard : entre 1 660 € et 2 300 € (prix moyens des énergies indexés sur l’année 2025)

Informations complémentaires :

Les diagnostics ont été réalisés le 03/08/2025
Les honoraires sont à la charge du vendeur.
Les informations sur les risques auxquels ce bien est exposé sont disponibles sur www.georisques.gouv.fr.

Les informations sur les risques auxquels ce bien est exposé sont disponibles sur le site Géorisques : www.georisques.gouv.fr

Contacter l'agence FLAT FISH IMMO pour tous renseignements et visite avec cecile . gonin @ or an ge .fr - Tél : O6 48 8O 43 53 - w w w .flat - fish . fr


Les informations sur les risques auxquels ce bien est exposé sont disponibles sur le site Géorisques

02
Plus d'infos

  • Code postal
    69630
  • Surface habitable (m²)
    230 m²
  • surface terrain
    650 m²
  • Surface loi Carrez (m²)
    212,93 m²
  • Nombre de chambre(s)
    4
  • Nombre de pièces
    6
  • Etage
    1
  • Nombre de niveaux
    2
  • Vue
    Parc

03
Financier

  • Prix de vente
    990 000 €
  • Les honoraires d'agence seront intégralement à la charge du vendeur
     
  • Taxe foncière annuelle
    2 646 €

04
Plus de détails

  • Nb de salle de bains
    2
  • Nb de salle d'eau
    1
  • Cuisine
    Américaine
  • Type de cuisine
    Equipée
  • Mode de chauffage
    Pompe à chaleur
  • Type de chauffage
    Panneaux rayonnant
  • Format de chauffage
    Individuel
  • Terrasse
    OUI
  • Nombre de garage
    1
  • Nombre de parking
    2
  • Exposition
    Est-Ouest
  • Année de construction
    1891
  • Terrain arboré
    OUI

05
Copropriété

  • Copropriété
    NON

06
Bilan énergétique

DPE GES
Nos outils

Plus d'informations sur
le quartier

  • Commerces et santé
  • Loisirs
  • Ecoles
  • Transports
  • Pratique
Intéressé(e)
par ce bien